11 ft - Moth
11 ft - Moth
BCA DEMCO KIT
Il Moth 11 è stato progettato in accordo con le regole della classe Classic Moth.
La classe Moth è nata negli Stati Uniti nel 1929 come classe a restrizione e ha conosciuto rapidamente un grande successo riscuotendo in particolare il favore di autocostruttori e di progettisti, la cui creatività era incoraggiata da regole di stazza molto semplici.
Con il tempo la classe si è diffusa anche in altri parti del mondo e ha conosciuto una notevole evoluzione. In Europa si è sviluppata dopo la seconda guerra mondiale dalla classe Moth un monotipo, l’Europa, che ha fatto classe a sé conoscendo un notevole successo. Nel contempo la classe continuava a svilupparsi anche come classe a restrizione. Le innovazioni introdotte dagli australiani in anni abbastanza recenti ne hanno portato allo sviluppo di barche estreme, strettissime e instabili, che richiedono doti atletiche ed acrobatiche ai timonieri, escludendo di fatto dalle competizioni gran parte dei velisti “normali”. Questo ha portato alla nascita di un’associazione Classic Moth che ha rimesso in vigore le regole del 1945, parzialmente aggiornate, in modo da tornare allo spirito originale della classe.
Il Moth 11 è stato disegnato in accordo con tali regole e dovrebbe, nell’ambito della classe, avere buone prestazioni anche se è concepito anche come barca da passeggio utilizzabile al di fuori dell’attività agonistica. Il piano velico che riportiamo è in accordo con le regole di stazza e si basa fondamentalmente su quello dell’Europa. Questo è stato fatto per facilitare il reperimento dell’attrezzatura in quanto è abbastanza facile trovare alberi e vele sia nuove sia usate dell’Europa. Sono comunque possibili anche piani velici alternativi mantenendo lo stesso centro velico.
Per ottenere buone prestazione avendo al tempo stesso una discreta stabilità si è cercato di limitare al massimo la larghezza al galleggiamento (90 cm con dislocamento di 130 kg) e la superficie bagnata, che è di meno di 2 mq con la barca in assetto orizzontale ma diminuisce nettamente se si naviga adeguatamente appruati. La barca va tenuta per quanto possibile non sbandata in quanto la larghezza del piano di galleggiamento aumenta rapidamente con l’aumento dello sbandamento, ciò che conferisce una notevole stabilità di forma consentendo di portare la superficie velica elevata. Con vento debole deve essere appruata mentre con vento forte va tenuta piatta e leggermente appoppata per facilitare la planata.
Moth 11’ è concepita per essere al tempo stesso di facile e rapida costruzione.
Il primo obbiettivo (facilità di costruzione) deriva dal metodo costruttivo scelto, il “cuci e incolla”, il metodo più semplice. La massima rapidità con questo sistema si consegue riducendo il tempo necessario per le finiture (stuccatura e levigatura del nastro, laboriosa e difficile soprattutto negli spigoli interni).
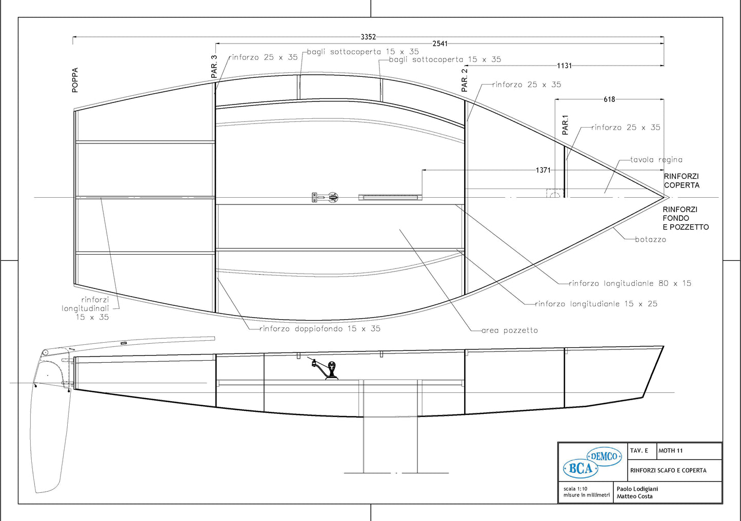
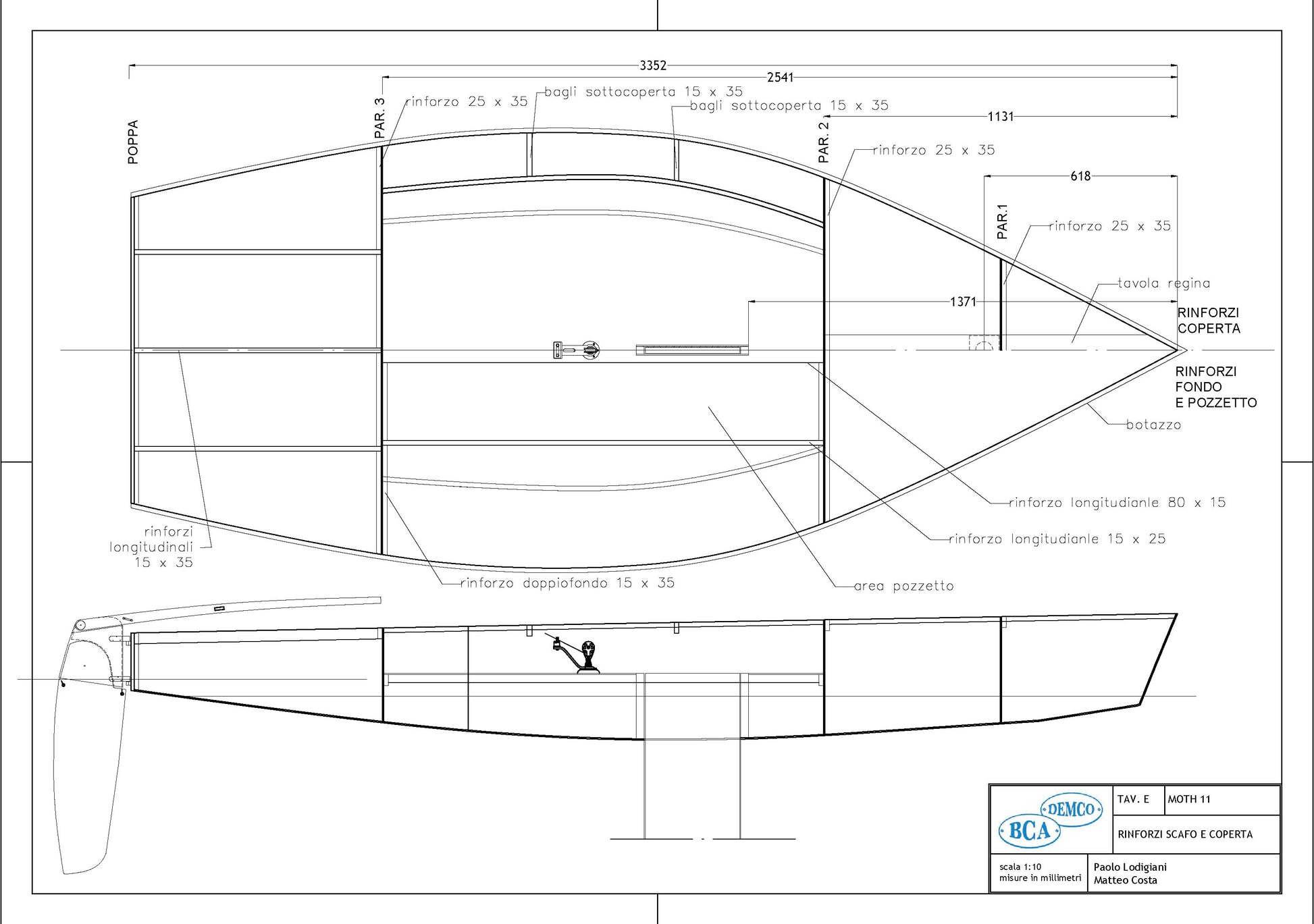
Lunghezza: 3,35 m
Progetto di: Paolo Lodigiani
Carena a spigolo, costruzione in cuci e incolla
Difficoltà di costruzione: per inesperti
Impossibile caricare la disponibilità di ritiro
Share
 
 
 
 
 
 
 
 
 
 

 
     
     
     
     
     
     
     
     
     
    