10 ft - Giormax
10 ft - Giormax
BCA DEMCO KIT
Anche se non sembra il GIORMAX è una barca classica; classica nel senso che si tratta di una rielaborazione di un progetto degli anni ’30. La storia è abbastanza curiosa. La si legge su un bel libro, ormai introvabile, pubblicato nel 1935 dalla rivista “La Vela e il Motore” e scritto da Mario Corsico “Guida pratica per la costruzione di barche”. Racconta il Corsico che due ragazzi di Genova avevano trovato arenato su una spiaggia un galleggiante di idrovolante. Per divertirsi avevano provato ad aggiungerci una piccola vela, una deriva e si erano accorti che questa barca improvvisata camminava che era una meraviglia. Da questa casuale scoperta era nata una vera e propria classe velica, battezzata GIORMAX perché i due ragazzi si chiamavano Giorgio e Max, che aveva avuto anche una certa diffusione negli anni precedenti la Seconda Guerra Mondiale.
Non so se sia il fascino di questo aneddoto o quello di un disegno così semplice ed essenziale ad avermi spinto a ridisegnare e a realizzare un nuovo GIORMAX in occasione di un corso di costruzione. Del GIORMAX originale ho mantenuto l’impostazione originale, modificando il piano velico (leggermente ridotto e con sola randa) e il disegno del timone, un po’ modernizzato: ho aggiunto due piccole terrazze intorno al pozzetto in modo da avere un pozzetto largo dentro al quale star seduti e un comodo appoggio quando ci si sporge fuoribordo. La barca è stata costruita in quattro giorni di lavoro tutt’altro che massacrante e alla fine del corso era pronta al varo. Quando si è presentata sul campo di regata le sue forme così inusuali hanno suscitato non pochi commenti ironici e vari paragoni con oggetti che nulla hanno a che fare con il mondo delle barche: il più azzeccato mi sembra quello con i vecchi tamponi che si usavano per la carta assorbente.
I commenti sono comunque rapidamente stati zittiti dalle ottime prestazioni del GIORMAX in acqua: di bolina era il più veloce fra i diecipiedi presenti alla regata e in poppa solo un trimarano l’ha raggiunta. Mentre queste prestazioni non mi hanno sorpreso più di tanto perché una barca stretta, che sbandando restringe ulteriormente il piano di galleggiamento e mette lo spigolo in acqua per tutta la sua lunghezza non poteva che essere veloce, avevo qualche dubbio in più sulla comodità e sulla stabilità, che invece si sono rivelate assai superiori a quanto mi aspettassi. Sia seduti all’interno del pozzetto che sul bordo la barca è ragionevolmente comoda e la stabilità è più che sufficiente: per rovesciarsi bisogna veramente fare dei grossi errori di manovra. Il piano velico è quello del Farò con una randa maggiorata a 7 mq di superficie. Una randa di un metro quadro più grande, ai limiti della stazza, darebbe un po’ di velocità in più ma ovviamente rende la barca più difficile da tenere con vento forte. La barca è molto maneggevole e, grazie al peso ridotto, pratica da maneggiare anche a terra.
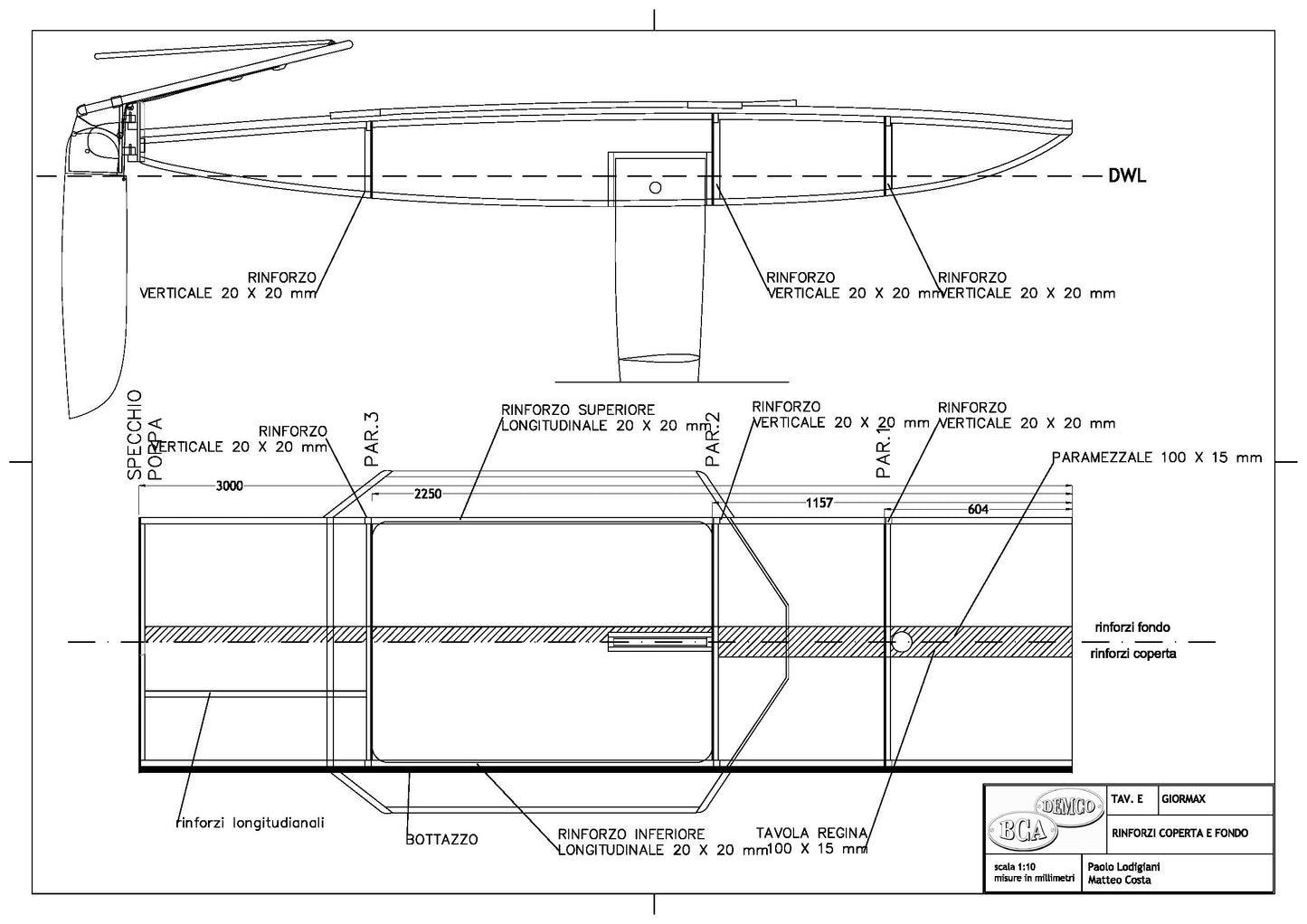
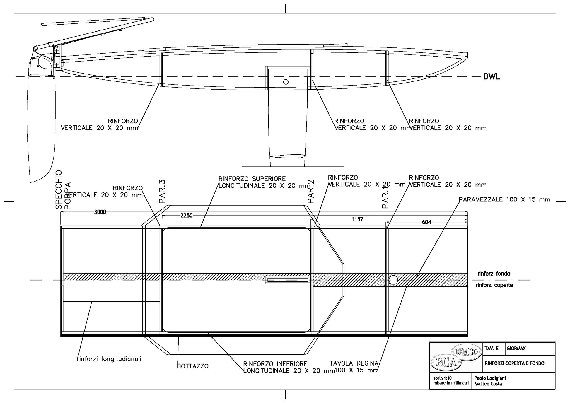
Lunghezza: 3,00 m
Progetto di: Paolo Lodigiani
Carena a spigolo, costruzione in cuci e incolla
Classe Diecipiedi
Difficoltà di costruzione: per inesperti
Impossibile caricare la disponibilità di ritiro
Share
 
 
 
 
 
 
 

 
     
     
     
     
     
     
    